dřevěný domek KARIBU SCHWANDORF 3 + přístavek 280 cm včetně zadní a boční stěny (77745) terragrau LG3902
Kód: LG3902Související produkty
Detailní popis produktu
Německá kvalita od prémiového německého výrobce Karibu Holztechnik GmbH.
Základní model rohového dřevěného domku pro vaši zahradu. Tento model má pultovou střechu a jednokřídle dveře na pantech. Stavebním materiálem domku jsou dřevěné profily síly 19 mm perfektně vyfrézované ze severského smrku. Dodáváme jako stavebnici v rozloženém stavu, kde stěny tvoří jednotlivé dřevěné profily, které pouze sesadíte k sobě a sešroubujete, střechu tvoří celistvá deska. To garantuje extrémně jednoduchou montáž, kterou zvládne každý český kutil.
Tato verze domku obsahuje přístavek včetně zadní a boční stěny délky 280 cm montovatelný zprava nebo zleva.
Krátký popis:
- dřevěné profily síly 19 mm
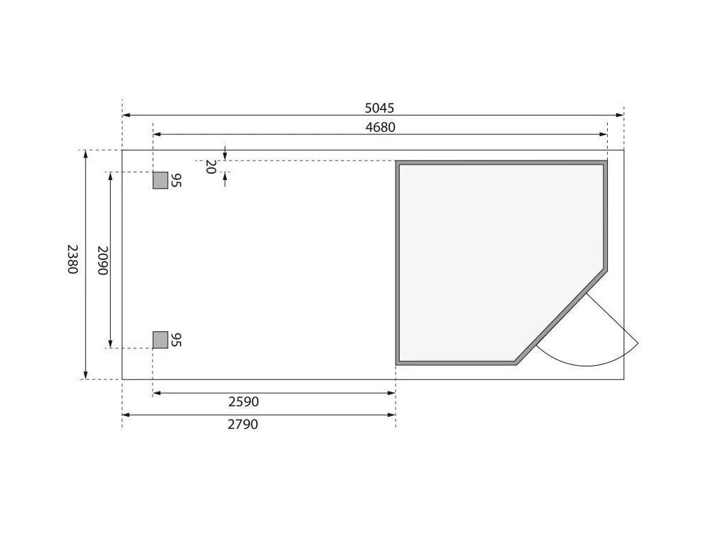
- vnější rozměr š 468 x d 217 cm
- vnitřní rozměr š 205 x d 209 cm
- rozměr střechy š 504,5 x d 238 cm
- jednokřídlé dveře na pantech o celkové světlosti š 84,5 x v 176,5 cm
- 4x okno ve dveřním křídle (prosklení z mléčného plastového skla)
- dodáváno bez podlahy
- v balení je veškeré potřebné kování
- obsahem balení je základový tlakově impregnovaný nosný podlahový rošt (rám) ze severské borovice, na který je možné rovnou přišroubovat podlahu
- vnější strana domku: stěny šedo-hnědá barva terragrau RAL 0604005 + světlá barva slonová kost RAL 1015
- vnitřní strana domku: přírodní bez nátěru
Certifikace:
Špičková kvalita tohoto výrobku je potvrzena českým CERTIFIKÁTEM VÝROBKU č. 3893/222/§5a/20205 a STAVEBNĚ TECHNICKÝM OSVĚDČENÍM STO-3893/25 vydaným Výzkumným a vývojovým ústavem dřevařským Praha s.p. (autorizovaná osoba 222).
Základy domku:
Věnujte prosím MIMOŘÁDNOU péči při budování základu pro domek. Základ postavte tak, aby horní hrana základu přesahovala asi 5 cm okolní terén. Základ musí být přesně vyvážen do vodorovné roviny a odvodněn, aby základové trámky ležely v rovině. Aby bylo zabráněno přímému kontaktu se zemí a vniknutí zemní vlhkosti do trámků, podložte nosný rošt domku pásky z bitumenové lepenky (nejsou součástí dodávky). Pro trvanlivost základu je nutno dodržet tyto nejdůležitější předpoklady - podklad, pravoúhlost a přesná rovina. S kvalitním základem vydrží domek o mnoho let déle. Nechte si poradit nebo základ zhotovit odborníkem-stavařem.
Podlaha:
Pokud domek rovnou stavíte na dlažbě, betonu nebo jiném pevném a nosném povrchu, tak podlahu nepotřebujete. Nicméně ji doporučujeme, je to z uživatelského hlediska mnohem příjemnější, podlaha vám pomůže vytvořit mnohem útulnější a čistší vnitřní prostor domku. Podlahový rám (rošt) z tlakově impregnované severské borovice, na který se dá přišroubovat podlaha, je obsahem základního balení domku. Pro stavbu podlahy není úplně nutné přikupovat originální podlahu, na podlahový rám lze přišroubovat podlahu z jakéhokoliv vhodného materiálu (palubky, OSB desky apod.), který přiříznete na požadované rozměry. Dokoupením originální podlahy ale získáte jistotu, že vše "pasuje" a ušetříte si tak část práce. Položení podlahy je nutné v případě, že domek postavíte na měkkém povrchu. Vlastní originální podlaha se skládá ze smrkových profilů s pérem a drážkou. Podkladová konstrukce (nosný rám) je pak tvořena 60 mm širokými, tlakově impregnovanými podlahovými nosníky (již obsaženo v základním balení). Originální modely podlah naleznete v tomto eshopu v menu montážní příslušenství KARIBU.
Střecha:
Střecha je zhotovena z dřevotřískových desek. Střešní krytina není obsahem dodávky a je nutné ji ihned po stavbě doplnit podle vlastní volby. Pro domky se šikmou střechou doporučujeme samolepící bitumenovou lepenku, na ploché střechy samolepící střešní hliníkovo-bitumenovou fólii. U střech se sklonem >15o je vhodný i bitumenový šindel. Potřebný počet rolí samolepící ALU-bitumenové krytiny o rozměru 1 x 5 metrů pro tento model domku = 4 role.
Povrchová úprava domku:
Tento model domku dodáváme v profesionálním nátěru KARIBU:
- Profesionální KARIBU FARBSYSTEM - dřevěné profily jsou z vnější strany již ve výrobě opatřeny kvalitní vodoodpudivou barvou, která ochrání dřevo před vlivem UV záření a počasí. Vnitřní strana zůstává vždy v přírodním neošetřeném stavu. KARIBU FARBSYSTÉM sebou nesou jistou počáteční investici, ale v konečném důsledku velkou úsporu času, práce i peněz.
Skladování před montáží:
Pozor, balík s materiálem není vodotěsný. Folie chrání dřevo jen proti znečištění. Skladujte proto stavební sadu až do konečné montáže v suchu, ne přímo položenou na zemi, chráněnou proti vlivům počasí (vlhkost, slunce atd.). Neskladovat ve vytápěném prostoru!
Povolení ke stavbě domku:
Dřevěný domek s pevnými základy může vyžadovat určitá povolení od místních úřadů. Proto raději před nákupem domku ověřte na stavebním úřadě aktuální situaci s územním rozhodnutím (rozhodnutí o umístění stavby). Doporučujeme na všech místních úřadech ověřit platné předpisy pro oblast plánované stavby domku, protože stavba domku může být úřady zrovna v místě vaší zahrady z různých důvodů omezena. Pokud máte zahrádku (pozemek) v nájmu, tak se musíte dohodnout i s jejím majitelem.
Doprava:
Osobní odběr na našich pobočkách je možný, nicméně počítejte s velkou hmotností domku a s nutností odpovídajícího přívěsného vozíku nebo raději dodávky (např. tranzitu). Pokud si objednáte naši dopravu, tak domek dopravíme v rozloženém stavu nejblíže hranici vašeho pozemku. Domek bude složen vedle nákladního vozidla, které přijede co nejblíže vámi udané adrese. Jakoukoliv další manipulaci se složeným domkem (např. z místa složení na zahradu, do garáže) si musí zajistit kupující, dopravce další přemisťování domku nezajišťuje. Při vykládce je nutná spolupráce kupujícího. Především u větších domků předem počítejte s tím, že zabalený domek může představovat více palet o celkové hmotnosti ve stovkách kg!
Upozornění:
- výrobek dodáváme v rozloženém stavu
- produkt na obrázku může obsahovat příplatkové příslušenství nebo prvky, které nejsou obsahem základního balení
- tento produkt je určen výhradně pro nekomerční domácí použití
Rozměry balení:
- paleta - 239 x 103 x 43 cm / 270 kg
- paleta - 272 x 100 x 25 cm / 140 kg
- paleta - 260 x 30 x 23 cm / 38 kg
- paleta - 210 x 30 x 23 cm / 35 kg
Podívejte se na video o zahradním domku Arrow :
Doplňkové parametry
| Kategorie: | Zahradní domky |
|---|---|
| Barva: | terragrau |
| Dveře: | jednokřídlé na pantech |
| Výrobce: | KARIBU HOLZTECHNIK |
| Hmotnost: | 483kg |
| Kategorie: | dřevěné domky |
| Přístavek: | 2,80m |
| Šířka dveří: | 0,84m |
| Typ střechy: | pultová (plochá) |
| Výška dveří: | 1,76m |
| Výška stěny: | 2,02m |
| Délka (vnější): | 2,17m |
| Síla střechy: | 16mm |
| Šířka (vnější): | 4,68m |
| Stěnové okno: | ks |
| Výška (vnější): | 2,18m |
| Sklon střechy: | 3o |
| Plocha střechy: | 12,20m2 |
| Tloušťka stěny: | 19mm |
| Vnitřní plocha: | m2 |
| Zastavěná plocha: | 10,15m2 |
| Podlaha přibalena: | ne |
| Okna (materiál prosklení): | plexisklo |
| Zatížení střechy na sníh: | 75kg/m2 |
| Povrchová plocha k nátěru: | m2 |
| Střešní krytina (obsah dodávky): | ne |
| Doporučený počet balení stř. šindelů (po 3 m2): | ks |
| Doporučený počet bitumen. rolí na střechu (0,5x5 m): | ks |
| Doporučený počet ALU-bitumen rolí na střechu (1x5 m): | 4ks |
| Doporučený počet bitum. rolí ke střešním šindelům (1x5 m): | ks |
Diskuze
Buďte první, kdo napíše příspěvek k této položce.
